おしゃれな梁出天井!利便性の高い立地の新築建売住宅
・ZEH水準省エネ住宅
・断熱等級5
・外壁光セラ(KMEW)採用
・制震ダンバー(住友ゴムMAMORY)搭載
・1階LDは梁出天井でおしゃれ
・1階ダイニングにスタディカウンターあり
・ダブルバルコニー
・オール電化
・フラット35S(金利Aプラン)対応
・瑕疵担保責任保険(まもりすまい保険)で安心
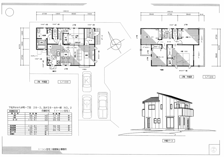
| 間取り | 5LDK | 駐車場 | 駐車場2台分 | 築年 | 2026年08月完成予定 | 土地面積 | 180.43㎡ (54.58坪) | 建物面積 | 112.61㎡ (34.06坪) | 引渡時期 | 相談 | 用途地域 | 第一種住居地域 | 容積率 | 200% | 建蔽率 | 60% | 地目 | 宅地 | 階数 | 2階建て | 学校区 | 下松市立公集小学校 869m | 取引態様 | 一般媒介 | 中学校区 | 下松市立末武中学校 1,706m | 建物構造 | 木造 | 都市計画 | 市街化区域 | 現況 | 建築中 | その他情報 | 上水、下水、オール電化 |
