2階4部屋+ウォークインクローゼット!両面道路の新築建売住宅
・両面道路・駐車2台分
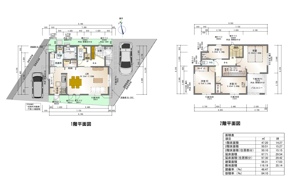
・17帖のゆったりLDK
・2階4部屋+寝室にウォークインクローゼットつき
・東南向き広々バルコニー
・制振ダンパー(住友ゴム”MAMORY”)搭載
・フラット35S(金利Bプラン)対応
・瑕疵担保責任保険(まもりすまい保険)で安心
| 間取り | 4LDK | 駐車場 | 駐車場2台分 | 築年 | 2026年3月完成予定 | 土地面積 | 116.19㎡ (35.15坪) | 建物面積 | 101.76㎡ (30.78坪) | 引渡時期 | 相談 | 用途地域 | 第一種住居地域 | 容積率 | 160% | 建蔽率 | 60% | 地目 | 宅地 | 階数 | 2階建て | 学校区 | 下松市立公集小学校 175m | 取引態様 | 一般媒介 | 中学校区 | 下松市立末武中学校 1,225m | 建物構造 | 木造 | 都市計画 | 市街化区域 | 現況 | 建築中 |
