主寝室に書斎カウンター付き!オール電化の新築建売住宅
・省エネ基準適合住宅
・外壁光セラ(KMEW)・制振ダンパー(住友ゴム「MAMORY」)搭載
・フラット35S(金利Bプラン)対応
・瑕疵担保責任保険(まもりすまい保険)で安心
・オール電化
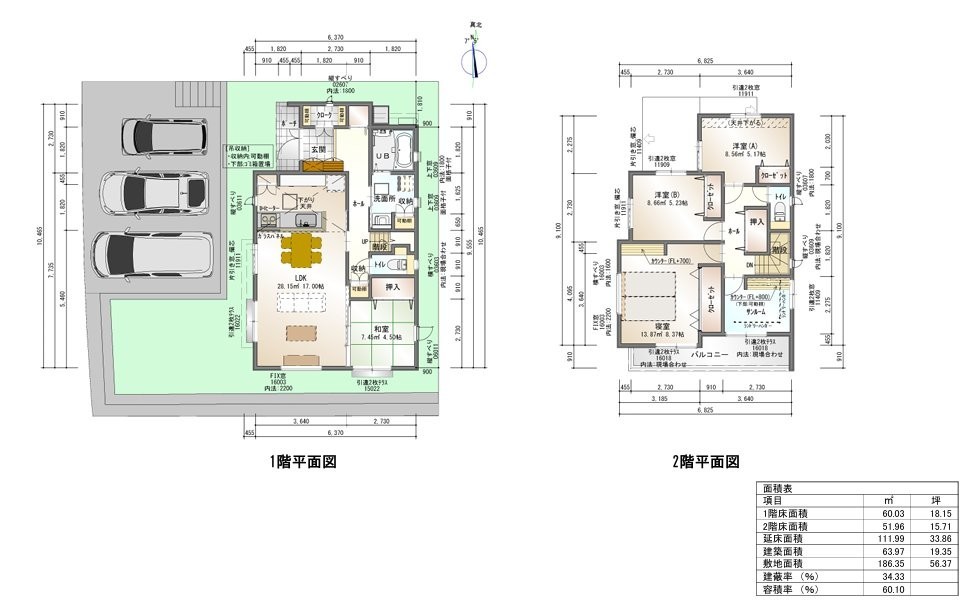
・2階主寝室に書斎カウンター・サンルームあり
・駐車場3台分確保
・外構付き
| 間取り | 4SLDK | 駐車場 | 駐車場3台分 | 築年 | 2026年06月完成予定 | 土地面積 | 186.35㎡ (56.37坪) | 建物面積 | 111.99㎡ (33.88坪) | 引渡時期 | 相談 | 用途地域 | 第二種低層住居専用地域 | 容積率 | 80% | 建蔽率 | 50% | 地目 | 宅地 | 階数 | 2階建て | 学校区 | 周南市立周陽小学校 454m | 取引態様 | 一般媒介 | 中学校区 | 周南市立周陽中学校 776m | 建物構造 | 木造 | 都市計画 | 市街化区域 | 現況 | 建築中 | その他情報 | 上水、下水、オール電化 |
