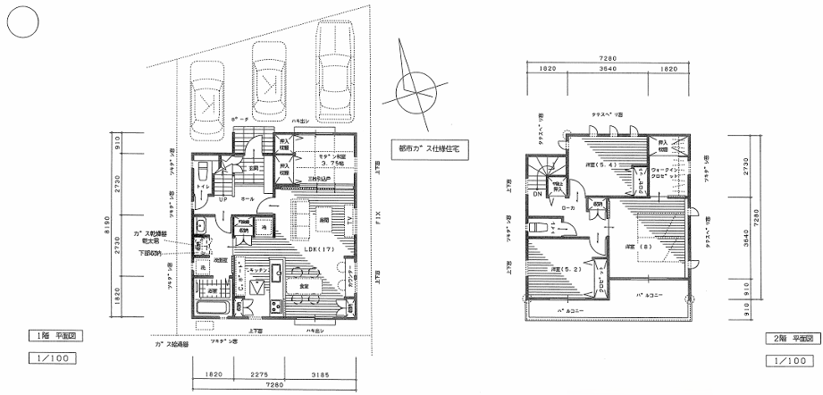
ガス乾燥機付き!ゆったりLDKの新築建売住宅
・1階リビングにスタディーカウンターあり
・2階主寝室にウォークインクローゼット付き
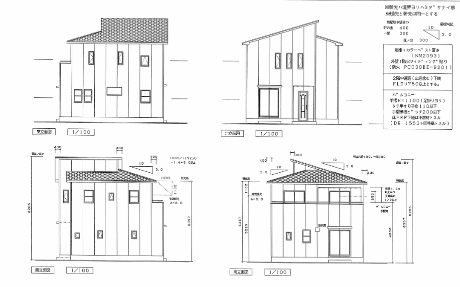
・広々した南向きバルコニー
・駐車場3台分確保(普通車1台・軽2台)
・制振ダンパー(住友ゴム”MAMORY”)搭載
・瑕疵担保責任保険(まもりすまい保険)で安心
・フラット35S(金利Bプラン)対応
| 間取り | 4LDK | 駐車場 | 駐車場3台分以上 | 築年 | 2026年4月完成予定 | 土地面積 | 116.78㎡ (35.33坪) | 建物面積 | 104.33㎡ (31.56坪) | 引渡時期 | 相談 | 用途地域 | 第一種住居地域 | 容積率 | 200% | 建蔽率 | 60% | 地目 | 宅地 | 階数 | 2階建て | 学校区 | 周南市立富田東小学校 290m | 取引態様 | 一般媒介 | 中学校区 | 周南市立富田中学校 1,153m | 建物構造 | 木造 | 都市計画 | 市街化区域 | 現況 | 建築中 |
